3.1 Geography and surroundings

The Main Building of the TUE is situated on the campus of the TUE, which is located near the centre of the town of Eindhoven (figure 3.1). The town has approximately 200.000 inhabitants. The latitude and longitude coordinates are 51.45$^\circ $ N and 5.48$^\circ $ E. The height above sea level is approximately 16 m. Eindhoven is situated in the south of the Netherlands: 110 km from Amsterdam, 100 km from Rotterdam, 105 km from Brussels and 120 km from Cologne. The North-Sea coast is more than 110 km westwards and hills can only be found some 70 km south-east- and southwards.

Figure: Eindhoven and its surroundings. ``TUE'' denotes the location of the Auditorium of the university; ``EA'' the location of weather station at the Eindhoven Airport. The light grey areas consist mainly of trees, the dark grey areas represent built areas.
\begin{center}%
\psfrag{TUE}{\footnotesize TUE}
\psfrag{4km}{\footnotesize ...
...ics[width=0.9\linewidth]{h-site/eindhoven/eindhoven-grijs2.eps}
 \end{center}

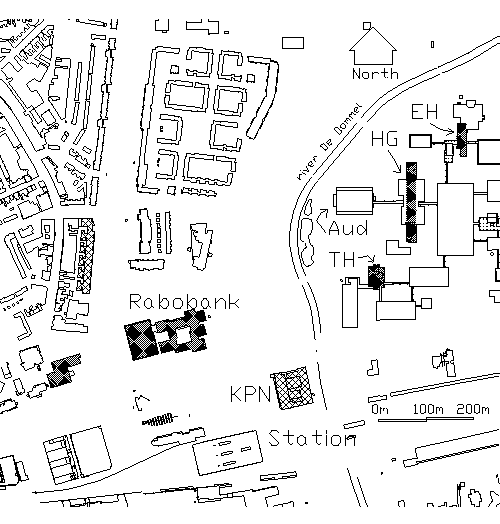
Figure: Plan of the site and westward fetch. The Main Building is denoted by ``HG'', the Auditorium by ``Aud'', and Building T by ``TH''. Other buildings with height up to 50 m are hatched. Buildings with heights from 15 to 35 m are indicated with a lighter hatch.
\begin{center}%
\includegraphics[angle=90,width=0.9\linewidth]{h-site/eps/tue-site2.plt}
\\ \end{center}

Figure 3.3: Areal view from west. The three high-rise buildings are (from left to right): Building EH, Main Building and Building T.
\begin{center}%
% plakplaatje\{0.9 linewidth\}\{0.6 linewidth\}
% includegraph...
...cludegraphics[width=\linewidth]{h-site/eps/tue-vogelvlucht2.ps}
 \end{center}

Figure 3.4: Measurement positions, plan.
\begin{center}%
\includegraphics[angle=90,width=0.6\linewidth]{h-site/eps/g-omgeving.plt}
 \end{center}

Figure 3.5: Measurement positions, view from north.
\begin{center}%
\includegraphics[angle=90,width=0.9\linewidth]{h-site/eps/g-nrdgevel.plt}
 \end{center}

Figure 3.6: Measurement positions, view from west.
\begin{center}%
\includegraphics[angle=90,width=0.9\linewidth]{h-site/eps/g-westgevel.plt}
 \end{center}

The region around Eindhoven is characterised by a quite flat topography. The surrounding villages do not have high-rise buildings; also in Eindhoven the number of high-rise buildings is quite small. The distance between the meteorological station at Eindhoven Airport and the experiment site is approximately 7.5 km. The two locations lie on the same latitude (figure 3.1). [Oemraw 1982] and [Verkaik 1999] described the meteorological station.

Figures 3.2 and 3.3, respectively, show a plan and an areal view of the direct surroundings of the Main Building. A more detailed plan of the site and elevations of the test building are drawn in figures 3.4, 3.5 and 3.6.

The dimensions of the Main Building are: (height) 45 m, (width) 169 m and (depth) 20 m. The reference location is at the Auditorium, i.e. for the measurement of reference wind and rain quantities. The Auditorium is 14 m high and is located at 72 m from the west façade of the Main Building. The Auditorium is surrounded by a park with trees with a height of approximately 15 m. The park extends to the west where mainly residence buildings are located. On the roof of the Auditorium a mast is mounted, which holds an ultrasonic anemometer on top. The anemometer is located at 45 m height, which is the roof height of the Main Building. The mast is 127 m west from the west façade of the Main Building.


Table 3.1: Angles of obstruction due to other buildings, seen from the centres of the Auditorium and the west façade of the Main Building. Expressed in degrees clockwise from north. Also the respective distances are listed.
from Main Building from Auditorium
Main Building -- -- 59$^\circ $-125$^\circ $ 110 m
Building EH 32$^\circ $-53$^\circ $ 250 m 55$^\circ $-70$^\circ $ 150 m
Building T 195$^\circ $-210$^\circ $ 150 m 150$^\circ $-163$^\circ $ 140 m
Rabobank 235$^\circ $-248$^\circ $ $\sim$500 m 225$^\circ $-243$^\circ $ $\sim$380 m


Buildings T and EH are the high-rise buildings (50 m height) in the vicinity of the Main Building (figure 3.2). The Rabobank building is approximately 500 m south-eastwards from the Main Building, and has a height of 50 m. Angles of obstruction due to these high-rise buildings, seen from the centres of the Main Building and the Auditorium, respectively, are listed in table 3.1.

The surroundings and the mast were reported in detail by [Geurts 1994]. Since then several buildings were renovated. The Auditorium was renovated during the latter half of 1995; a lift house, kettle house and cooling fan block were installed on its roof. The south-west substructure (floors 0 and 1) of the Main Building was renovated from summer 1998 to spring 1999. Everything but roof, floors and columns was removed; the building volume was remained during and after the renovation. In April 1999 the cladding, inner walls and top floor of Building T were removed. Its renovation for the new housing of the faculty of Architecture, Building and Planning started in February 2001.

© 2002 Fabien J.R. van Mook
ISBN 90-6814-569-X
Published as issue 69 in the Bouwstenen series of the Faculty of Architecture, Planning and Building of the Eindhoven University of Technology.